Southport Terrace, Chorley, PR6 0PN

3 bedroom House to rent

£875

Hive
Summary
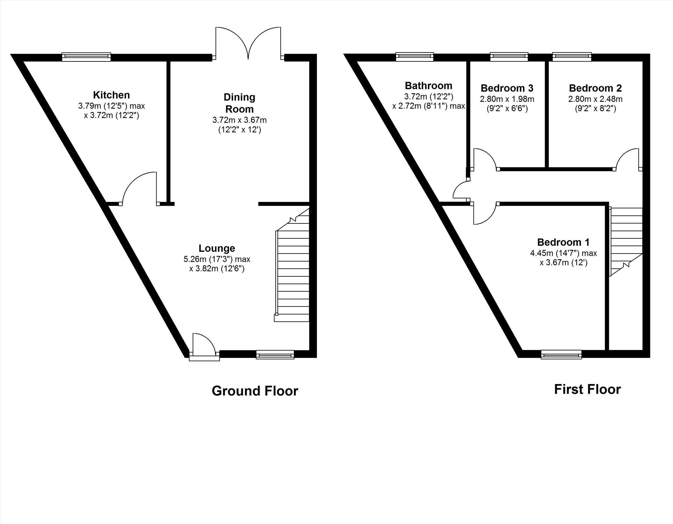
Farrell Heyworth are proud to present this immaculate three bed end terrace home to the rental market. Situated in a popular location in Chorley, within a short distance from amenities and transport links. The Ground floor briefly comprises of a large dining area that opens into the the living room, that has French doors to the rear garden and a modern fitted kitchen. Upstairs, you have three good sized double bedrooms and a four piece family bathroom. Externally the property has secure gated parking and a small patio area, suitable for barbeques. Register your interest today. Council Tax Information: Band A