Hawthorn Drive, Thornton Cleveleys, FY5 4GU

4 bedroom Semi-Detached House for sale

£194,995

Hive
Summary


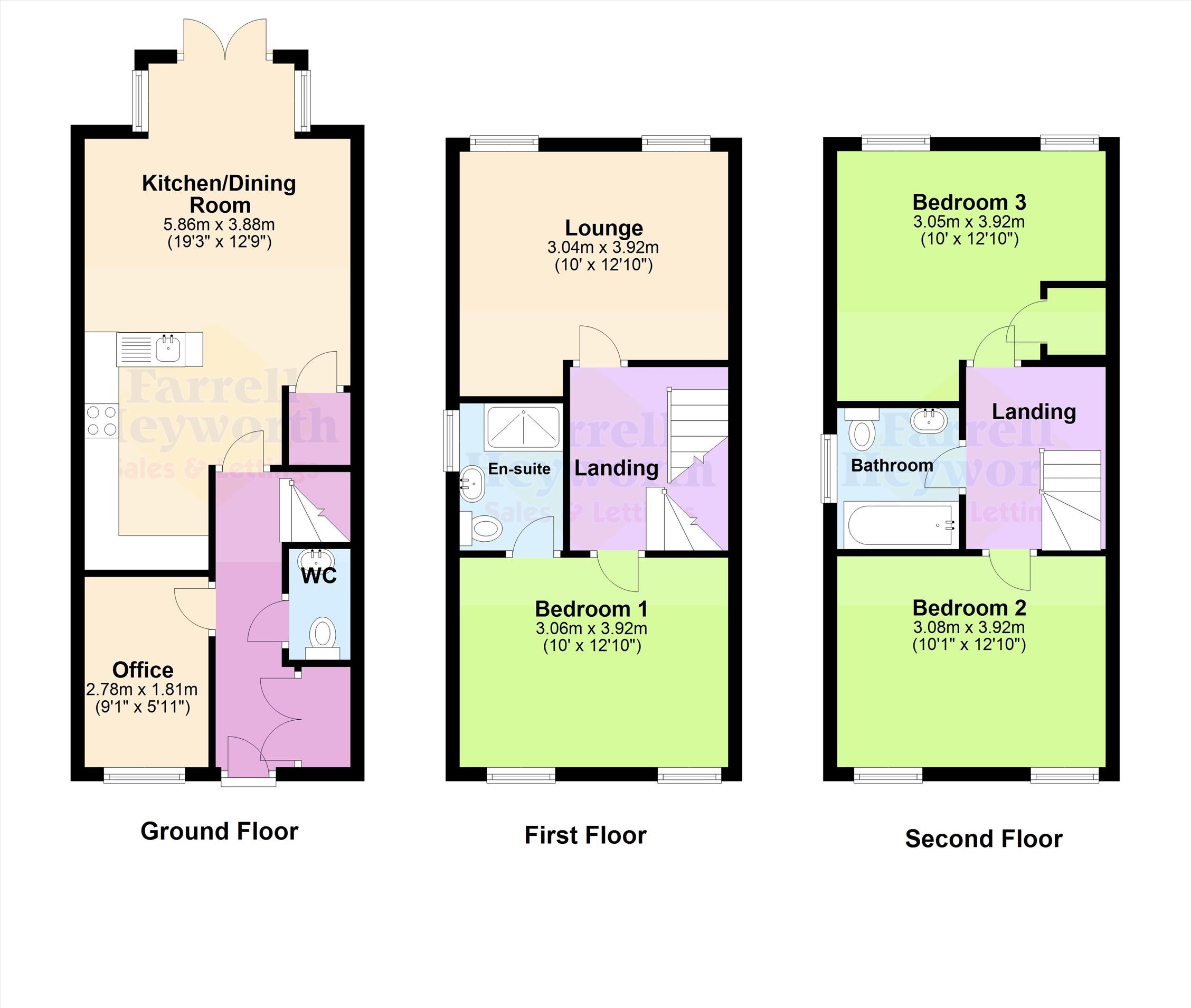
Room Descriptions

We are pleased to present to the market this beautifully presented three/four bedroom home over three floors, located in a popular area of Thornton Cleveleys. Internally on the ground floor the accommodation comprises; office/bedroom four, WC and modern kitchen and dining area which opens up onto the rear garden. To The first floor you will find a good size lounge and the master bedroom with en suite shower room. Stairs lead to the second floor with two further bedrooms and a family bathroom. Externally there are two allocated parking spaces to the front with access to the rear garden which is private and good size. Please Note: This property is currently leasehold on a 50% shared ownership scheme, however it is being sold at 100& ownership with the title reverting to freehold on completion. Council Tax Information: Band C