Strathnaver Avenue, Barrow In Furness, LA14 3DG

3 bedroom House for sale

£289,950

Hive
Summary


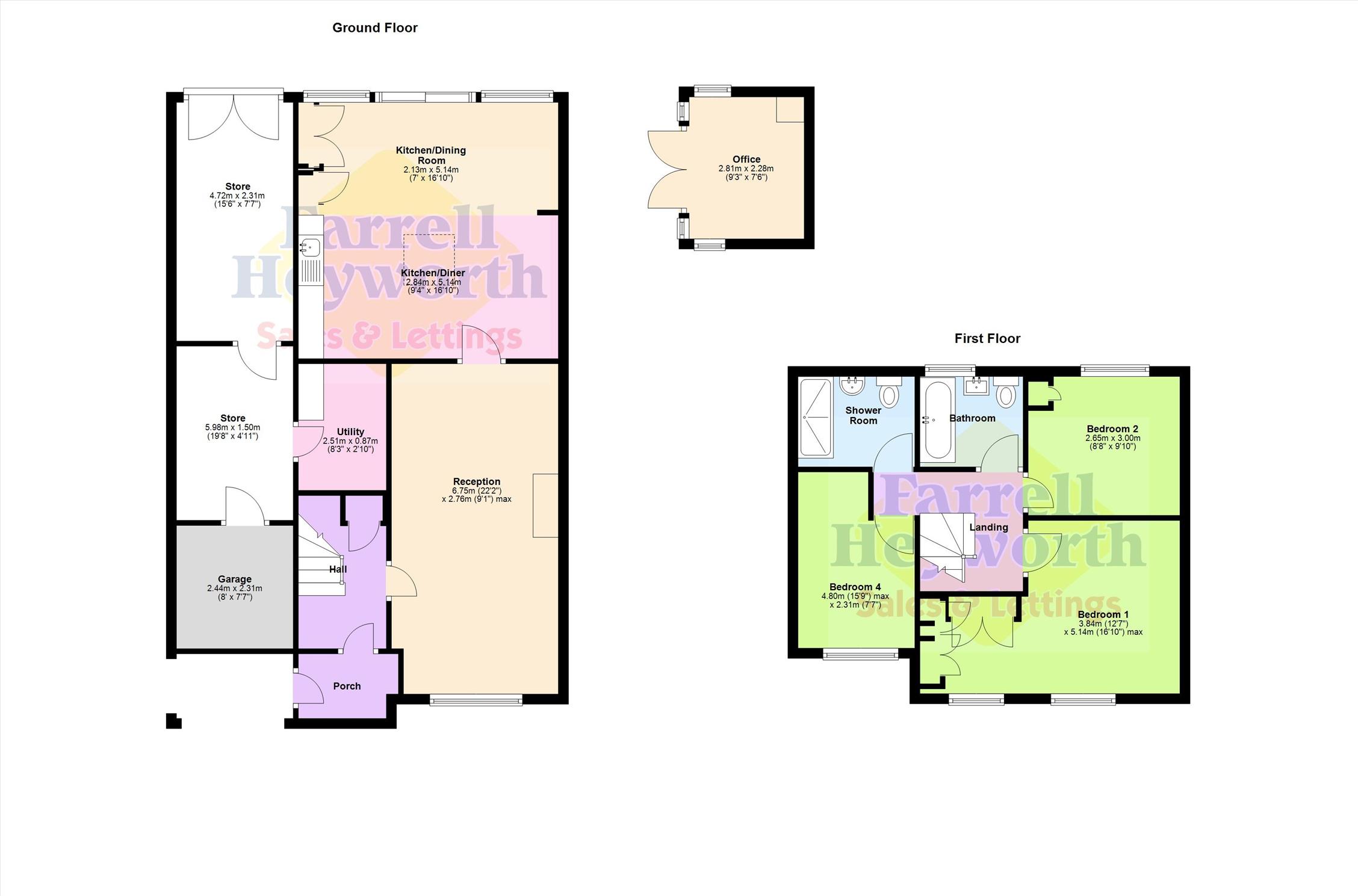
Room Descriptions

A well-presented and extended three-bedroom semi-detached house situated in the popular Walney area of Barrow, close to shops, schools, and local amenities. This home offers generous living space throughout and benefits from multiple extensions providing versatility and comfort. The property features a sizeable reception room and a modern extended kitchen diner with a breakfast bar, skylight, and patio doors leading to the partly patioed rear garden. There is a utility room, family bathroom and an additional shower room. The garage has been extended and divided into three separate storage areas. The master bedroom is spacious and fitted with wardrobes and there is also an office located at the rear of the garden, perfect for home working. Externally, the home includes a driveway and well-maintained gardens. Council Tax Information: Band C