Jubilee Road, Littlebourne, CT3 1TP

3 bedroom House for sale

£400,000

Hive
Summary
Identification checks Should a purchaser(s) have an offer accepted on a property marketed by Miles & Barr, they will need to undertake an identification check. This is done to meet our obligation under Anti Money Laundering Regulations (AML) and is a legal requirement. We use a specialist third party service to verify your identity. The cost of these checks is £60 inc. VAT per purchase, which is paid in advance, when an offer is agreed and prior to a sales memorandum being issued. This charge is non-refundable under any circumstances. Location The picturesque village of Littlebourne is located 4 miles East of Canterbury and can be accessed from the A257 or via Bekesbourne Lane. Littlebourne has a regular village bus service running from Sandwich to Canterbury, which is the main city in this region. Littlebourne has a village store, public houses and a well regarded primary school. On the outskirts of the village is Howletts Wild animal park. For those in need of retail therapy Canterbury hosts an array of shops, boutiques and restaurants serving dishes from across the globe. For those wishing to commute, the nearest train station's are Bekesbourne (2.1 miles) and Canterbury East (4.6 miles). Sporting and recreational opportunities nearby include: golf at Scotland Hills, Canterbury, sailing at Whitstable Yacht Club and Herne Bay, county cricket at Canterbury and day trips to France via Eurotunnel, all within easy access. In addition, the recently refurbished Marlowe Theatre, the spectacular Beaney House of Art & Knowledge and the Gulbenkian (theatre, cinema and café bar) at the University of Kent, all provide a wealth of excellent entertainment in Canterbury. Canterbury has two mainline railway stations, with Canterbury West offering the high speed service to London (St Pancras 56 mins). The property is also within easy access of the A2 dual carriageway, which in turn links to the Channel Port of Dover and Brenley Corner at Faversham, adjoining the M2 / A299 (Thanet Way) linking London and the coastal towns respectively. Ashford International (15.4 miles, London St Pancras 38 mins) which also has services to the continent via Eurostar (Paris 1 hr 52 mins) or via Eurotunnel at Cheriton (19.3 miles, Calais 35 mins).
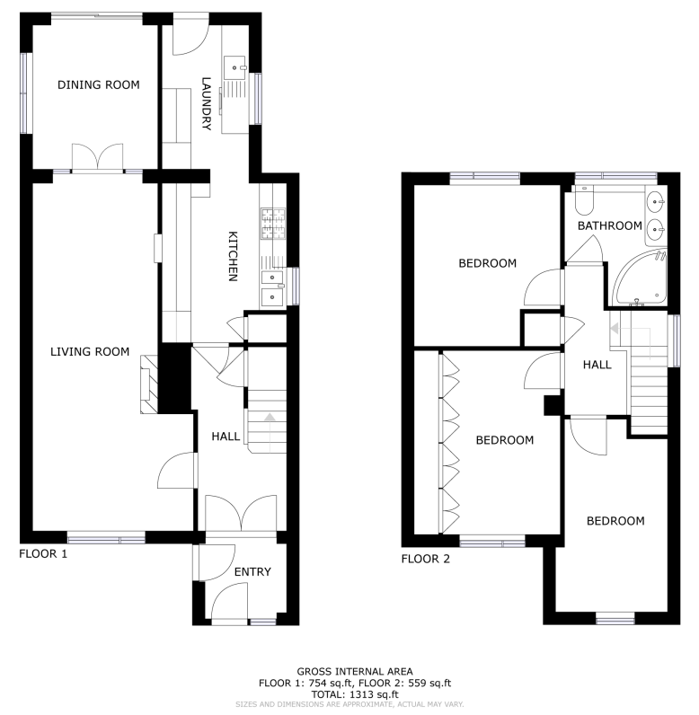
Measurements
  • Entrance Hall
  • Porch1.78m x 1.42m
  • Wc1.43m x 0.62m
  • Lounge7.62m x 3.47m
  • Dining Room3.11m x 2.76m
  • Kitchen3.51m x 2.60m
  • Utility Room2.89m x 3.12m
  • First Floor
  • Bathroom2.63m x 2.28m
  • Bedroom3.16m x 3.54m
  • Bedroom4.02m x 2.56m
  • Bedroom2.27m x 4.21m
  • External
  • Driveway Parking
  • Garage
  • Garden