Canterbury Road, Canterbury, CT3 1NH

5 bedroom Bungalow for sale

£625,000

Hive
Summary
Identification checks Should a purchaser(s) have an offer accepted on a property marketed by Miles & Barr, they will need to undertake an identification check. This is done to meet our obligation under Anti Money Laundering Regulations (AML) and is a legal requirement. We use a specialist third party service to verify your identity. The cost of these checks is £60 inc. VAT per purchase, which is paid in advance, when an offer is agreed and prior to a sales memorandum being issued. This charge is non-refundable under any circumstances. Location Summary Wingham lies between the vibrant city of Canterbury and historic the cinque port Sandwich. The property is close to many amenities including the local newsagent, general store, bakery, two farm shops, doctors surgery and dentist plus two pubs - The Anchor and The Dog. Wingham primary is well regarded in the local area. There are lots of dog walking opportunities via footpath networks through orchards. Wingham wildlife park is also located close by. A short drive to Adisham given connection to mainline rails services. The property is situated within 6 miles of the city of Canterbury, being within easy access of the High Street and all its amenities. These include an excellent modern shopping centre, the University of Kent, Canterbury Christchurch College and other colleges, together with an excellent choice of schools in both the public and private sectors. In addition to the High Street is the Kings Mile, which is a lovely mall of boutique style shops, cafes, eateries and public houses. Sporting and recreational opportunities nearby include: sailing at Whitstable Yacht Club and Herne Bay, county cricket at Canterbury and day trips to France via Eurotunnel, all within easy access. In addition, the recently refurbished Marlowe Theatre, the spectacular Beaney House of Art & Knowledge and the Gulbenkian (theatre, cinema and café bar) at the University of Kent, all provide a wealth of excellent entertainment in Canterbury. A bus stop is just yards away from the front door of the property servicing both Canterbury and Sandwich/Deal. Adisham train station is just a short drive away offering access to Canterbury's has two mainline railway stations, with Canterbury West offering the high speed service to London (St Pancras 56 mins). The property is also within easy access of the A2 dual carriageway, which in turn links to the Channel Port of Dover and Brenley Corner at Faversham, adjoining the M2 / A299 (Thanet Way) linking London and the coastal towns respectively. Ashford International (15.4 miles, London St Pancras 38 mins) which also has services to the continent via Eurostar (Paris 1 hr 52 mins) or via Eurotunnel at Cheriton (19.3 miles, Calais 35 mins).
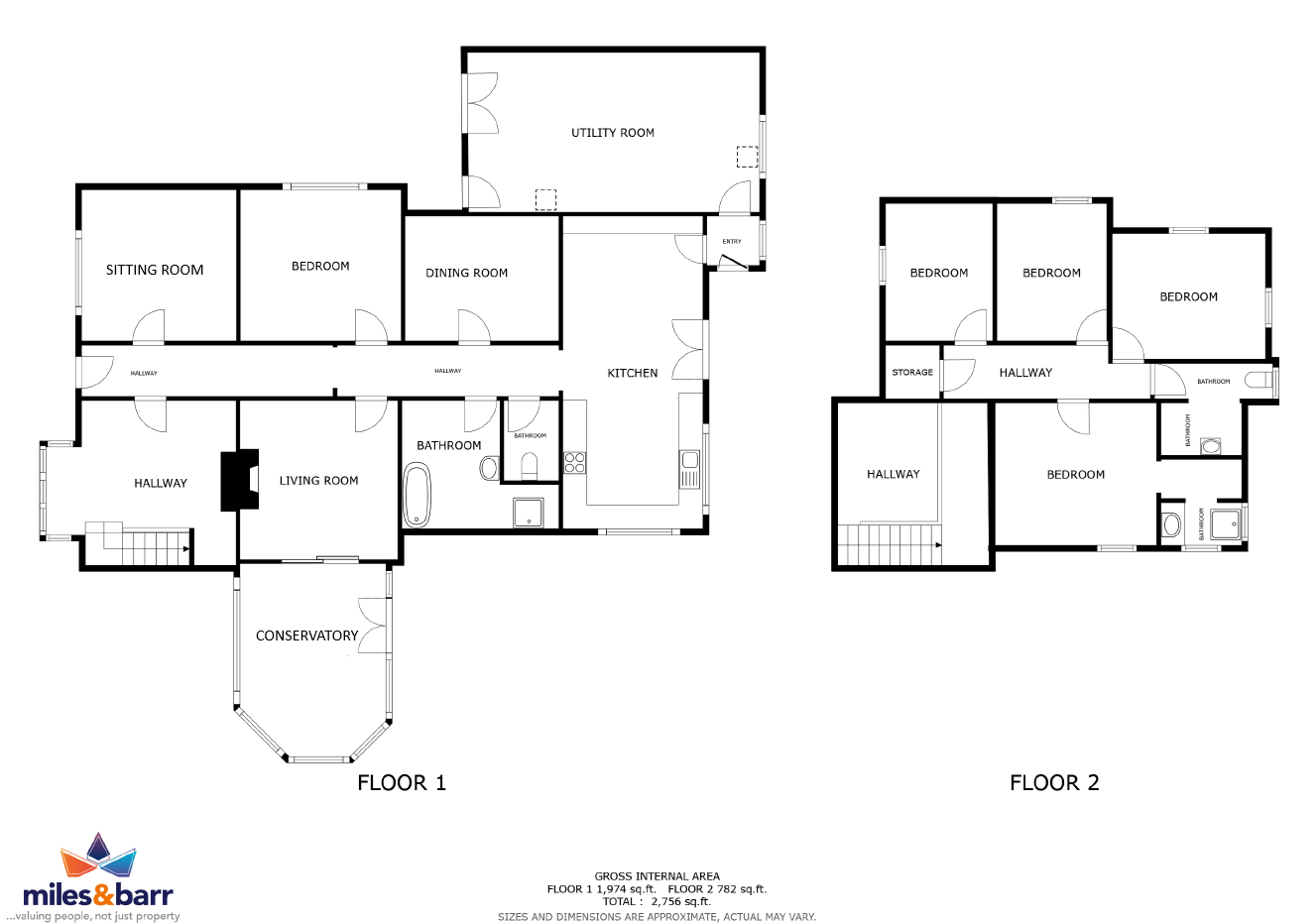
Measurements
  • Entrance Hall
  • Sitting Room3.84m x 3.82m
  • Bedroom3.92m x 4.05m
  • Living Room4.02m x 3.92m
  • Conservatory4.60m x 3.33m
  • Bathroom2.31m x 3.23m
  • WC1.31m x 2.02m
  • Kitchen/ Dining Room3.47m x 7.84m
  • Dining Room3.77m x 3.06m
  • Hallway5.18m x 3.96m
  • First Floor
  • Bedroom2.70m x 3.52m
  • Bedroom2.74m x 3.61m
  • Bedroom3.92m x 3.15m
  • Bathroom2.37m x 2.90m
  • Bedroom5.67m x 3.48m