Dane Valley Road, Dane Valley Road, CT9 3RY

3 bedroom House for sale

£310,000

Hive
Summary
Identification checks Should a purchaser(s) have an offer accepted on a property marketed by Miles & Barr, they will need to undertake an identification check. This is done to meet our obligation under Anti Money Laundering Regulations (AML) and is a legal requirement. | We use a specialist third party service to verify your identity provided by Lifetime Legal. The cost of these checks is £60 inc. VAT per purchase, which is paid in advance, directly to Lifetime Legal, when an offer is agreed and prior to a sales memorandum being issued. This charge is non-refundable under any circumstances. Location Margate is a fantastic seaside town and contains the areas of Cliftonville, Garlinge, Palm Bay and Westbrook. The energy surrounding Margate is excellent, it holds the likes of a world class Art Gallery, the UK's original pleasure park 'Dreamland', fast Rail links into London and of course not forgetting the stunning sandy beaches and sparkling bays. You are within a 10 minute drive to the neighbouring towns which are Broadstairs, Ramsgate and Birchington. There are also good road links to London via the A299 Thanet Way and M2 Motorway.
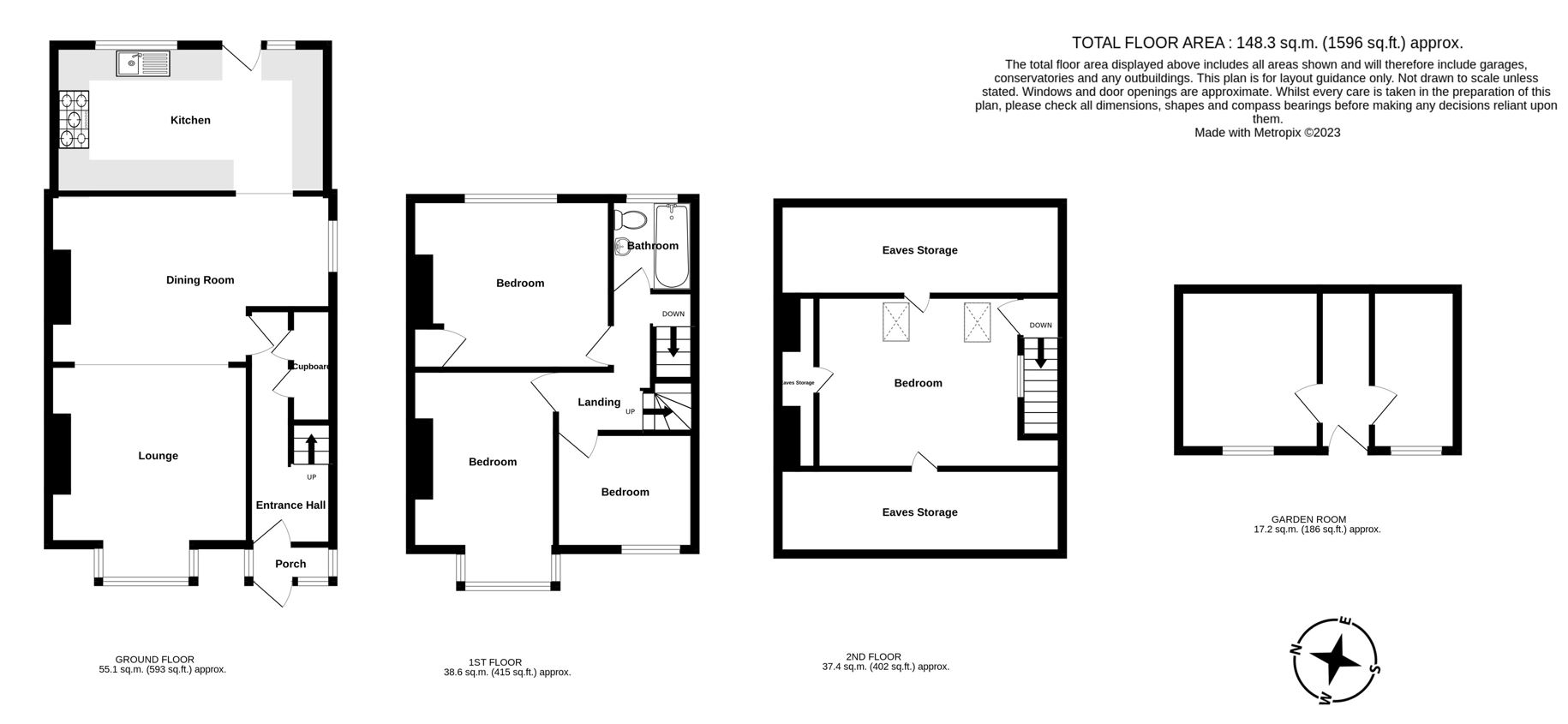
Measurements
  • Entrance
  • Entrance Hall
  • Lounge3.68m x 4.4m
  • Dining Room5.66m x 3.38m
  • Kitchen2.87m x 5.36m
  • First Floor
  • Bedroom3.4m x 3.94m
  • Bedroom3.94m x 2.62m
  • Bedroom2.67m x 2.29m
  • Bathroom1.73m x 1.8m
  • Second Floor
  • Loft Room4.01m x 3.38m
  • Exterior
  • Front Garden
  • Rear Garden