Buckingham Road, Margate, CT9 5SS

2 bedroom House for sale

£240,000

Hive
Summary
Identification checks Should a purchaser(s) have an offer accepted on a property marketed by Miles & Barr, they will need to undertake an identification check. This is done to meet our obligation under Anti Money Laundering Regulations (AML) and is a legal requirement. We use a specialist third party service to verify your identity. The cost of these checks is £60 inc. VAT per purchase, which is paid in advance, when an offer is agreed and prior to a sales memorandum being issued. This charge is non-refundable under any circumstances. Location Margate is a fantastic seaside town and contains the areas of Cliftonville, Garlinge, Palm Bay and Westbrook. The energy surrounding Margate is excellent, it holds the likes of a world class Art Gallery, the UK's original pleasure park 'Dreamland', fast Rail links into London and of course not forgetting the stunning sandy beaches and sparkling bays. You are within a 10 minute drive to the neighbouring towns which are Broadstairs, Ramsgate and Birchington. There are also good road links to London via the A299 Thanet Way and M2 Motorway.
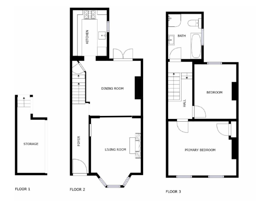
Measurements
  • Entrance
  • Entrance Hall
  • Cellar
  • Lounge34.9m x 3.45m
  • Dining Room3.6m x 3.56m
  • Kitchen3.35m x 2.2m
  • First Floor
  • Bedroom4.47m x 3.66m
  • Bedroom6.76m x 2.77m
  • Bathroom2.51m x 2.13m
  • Exterior
  • Rear Garden