Sweyn Road, Margate, CT9 2DH

2 bedroom for sale

£180,000

Hive
Summary
Identification checks Should a purchaser(s) have an offer accepted on a property marketed by Miles & Barr, they will need to undertake an identification check. This is done to meet our obligation under Anti Money Laundering Regulations (AML) and is a legal requirement. We use a specialist third party service to verify your identity. The cost of these checks is £60 inc. VAT per purchase, which is paid in advance, when an offer is agreed and prior to a sales memorandum being issued. This charge is non-refundable under any circumstances. Location Cliftonville is a coastal area in the town of Margate, situated to the east of the main town and mainly occupies Georgian and Victorian properties. The area itself is within easy walking distance of the 'Margate Old Town', Turner Contemporary Art Gallery and the Margate railway station which is approximately 2 miles away and offers fast services to Kings Cross, St. Pancras. There are also good road links to London via the A299 Thanet Way and M2 Motorway.
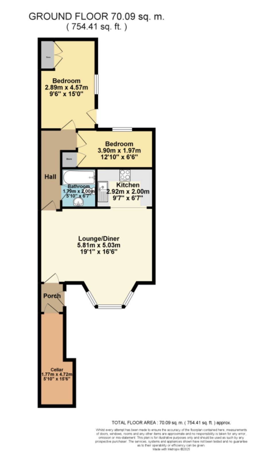
Measurements
  • Entrance Porch
  • Cellar1.78m x 4.72m
  • Lounge/diner5.82m x 5.03m
  • Kitchen2.92m x 2m
  • Bathroom1.78m x 2m
  • Bedroom3.9m x 1.98m
  • Bedroom2.9m x 4.57m
  • External
  • Communal Garden