Victoria Parade, Victoria Parade, CT11 8DA

1 bedroom for sale

£110,000

Hive
Summary
NO FORWARD CHAIN - DIRECT SEA VIEWS - RETIREMENT PROPERTY Nestled in a prime coastal location, this exquisite 1-bedroom flat offers a serene retreat with breathtaking sea views. Situated on the second floor with convenient lift access, this retirement property boasts a spacious lounge seamlessly blending into an open-planned kitchen, a cosy bedroom, and a modern shower room. Residents can enjoy socialising in the communal lounge, creating a vibrant community atmosphere. For added convenience, a laundry room is accessible to all residents, or opt for the convenience of your own integral washer dryer. This property is offered with no forward chain, providing a hassle-free transition for the discerning buyer seeking a tranquil seaside lifestyle. Step outside to discover the enchanting outside space surrounding this charming property. Whether you wish to bask in the sun while relishing the sea views or take a leisurely stroll along the coastal paths. TO ARRANGE AN APPOINTMENT TO VIEW CALL MILES AND BARR NOW Identification checks Should a purchaser(s) have an offer accepted on a property marketed by Miles & Barr, they will need to undertake an identification check. This is done to meet our obligation under Anti Money Laundering Regulations (AML) and is a legal requirement. We use a specialist third party service to verify your identity. The cost of these checks is £60 inc. VAT per purchase, which is paid in advance, when an offer is agreed and prior to a sales memorandum being issued. This charge is non-refundable under any circumstances. Location Ramsgate is situated on the southerly aspect of the Isle of Thanet and benefits the country’s only Royal Harbour, its status being granted by King George IV in 1821. The distinctive and beautiful harbour has a vibrant yachting community alongside some commercial activity and was where the Little Ships evacuation of Dunkirk set out from in 1940. The town is enjoying something of a Renaissance with its large amount of Grade II Listed property, many set within elegant Regency squares, or overlooking the sea, others with links to or influenced by the architect Augustus Pugin. In recent years the Royal Harbour has seen many restaurants, cafes and bars emerge alongside quirky independent retail outlets, some utilising the arches on the quayside beneath Royal Parade. The town is steeped in history with associations to many well known figures including Queen Victoria , Karl Marx and Vincent Van Gogh as well as having a fascinating network of tunnels beneath the main centre. The fortunes of the town have been hugely assisted by the recent addition of a high speed rail link to London St Pancras making a commute for many a viable option.
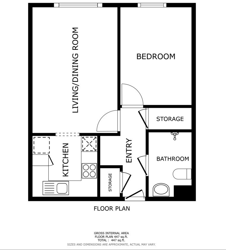
Measurements
  • Entrance Hall
  • Entrance
  • Bedroom2.46 x 3.60
  • Kitchen2.08 x 2.38
  • Lounge3.04 x 4.57
  • Bathroom1.52 x 2.13