Hatfield Road, Hatfield Road, CT11 9SS

3 bedroom House for sale

£290,000

Hive
Summary
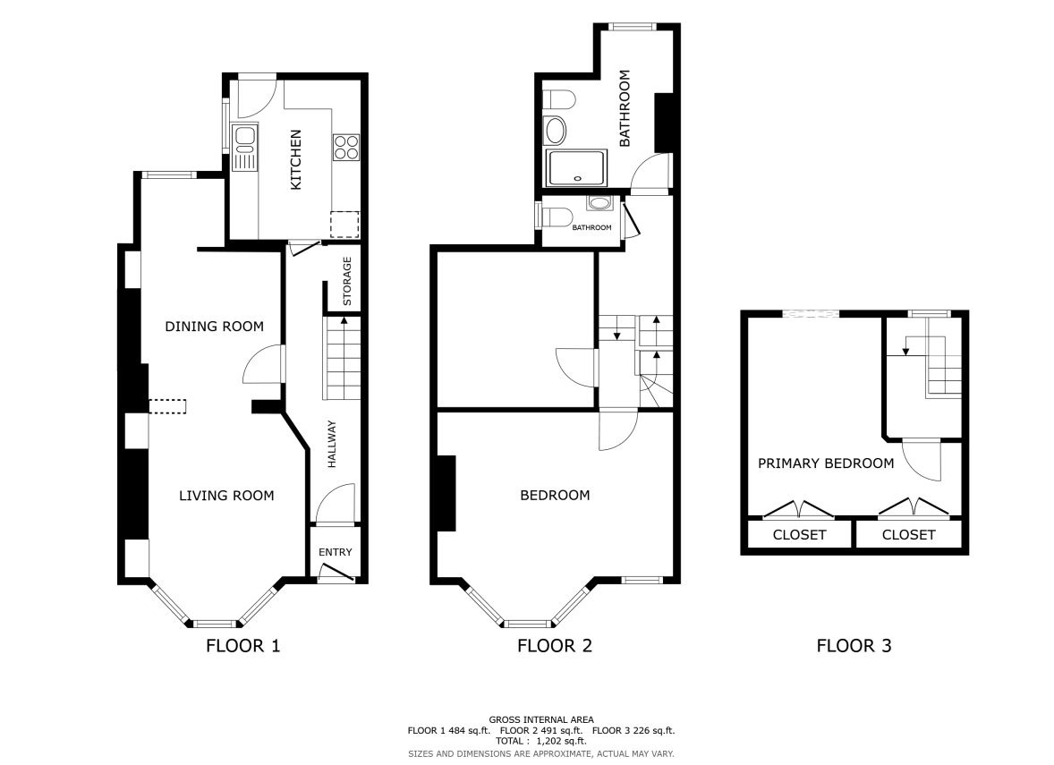
Introducing a charming three-bedroom mid-terraced house nestled in a sought-after location along a tranquil road, this period property boasts an array of features that combine comfort and convenience. Upon entering the property, one is greeted by a spacious living area that offers the perfect space for relaxation and entertainment. The ground floor also hosts a well-equipped kitchen, providing ample preparation and storage space for culinary enthusiasts. Ascend to the first floor, where the property has two double bedrooms and a third double on the second floor. Each bedroom is generously proportioned, offering ample space for personalisation and relaxation. A family bathroom with an additional second toilet, providing a clean and modern space for daily routines. Noteworthy is the property's cellar, providing additional storage space for household items, seasonal decorations, or personal belongings. Step outside and discover a low-maintenance garden that offers a sanctuary for outdoor enjoyment and al-fresco dining. A shed in the garden provides further storage solutions, allowing for the safekeeping of gardening tools or outdoor equipment. Convenience is at the forefront with this property, as it is situated in close proximity to Ellington Park, offering an idyllic outdoor space for leisurely strolls or recreational activities. Additionally, a short walk will lead you to Ramsgate train station, granting easy access to various transportation links for commuting or exploring the surrounding areas. Families will appreciate the property's proximity to local schools, providing educational opportunities for children. Furthermore, its convenient location ensures a short walk into town, where a variety of amenities, shops, and dining options can be found. In conclusion, this three-bedroom mid-terraced house presents a wonderful opportunity for those seeking a comfortable family home in a desirable location. With its spacious interiors, convenient amenities, and proximity to local attractions, this property encapsulates the essence of modern living within a traditional setting. Contact us today to arrange a viewing and experience the charm and convenience of this delightful property first-hand. Identification checks Should a purchaser(s) have an offer accepted on a property marketed by Miles & Barr, they will need to undertake an identification check. This is done to meet our obligation under Anti Money Laundering Regulations (AML) and is a legal requirement. We use a specialist third party service to verify your identity. The cost of these checks is £60 inc. VAT per purchase, which is paid in advance, when an offer is agreed and prior to a sales memorandum being issued. This charge is non-refundable under any circumstances. Location Ramsgate is situated on the southerly aspect of the Isle of Thanet and benefits the country's only Royal Harbour, its status being granted by King George IV in 1821. The distinctive and beautiful harbour has a vibrant yachting community alongside some commercial activity and was where the Little Ships evacuation of Dunkirk set out from in 1940. The town is enjoying something of a Renaissance with its large amount of Grade II Listed property, many set within elegant Regency squares, or overlooking the sea, others with links to or influenced by the architect Augustus Pugin. In recent years the Royal Harbour has seen many restaurants, cafes and bars emerge alongside quirky independent retail outlets, some utilising the arches on the quayside beneath Royal Parade. The town is steeped in history with associations to many well known figures including Queen Victoria , Karl Marx and Vincent Van Gogh as well as having a fascinating network of tunnels beneath the main centre. The fortunes of the town have been hugely assisted by the recent addition of a high speed rail link to London St Pancras making a commute for many a viable option.
Measurements
  • Entrance
  • Entrance Hall
  • Lounge/Diner2.80 x 7.80
  • Kitchen2.70 x 3.30
  • Lower Ground Floor
  • Cellar3.40 x 4.00
  • First Floor
  • Bedroom4.30 x 4.90
  • Bedroom2.80 x 3.20
  • WC0.90 x 1.60
  • Bathroom2.60 x 3.50
  • Second Floor
  • Bedroom4.20 x 4.50