Bewsbury Cross Lane, Bewsbury Cross Lane, CT16 3HB

4 bedroom Bungalow for sale

£450,000

Hive
Summary
Identification Checks Should a purchaser(s) have an offer accepted on a property marketed by Miles & Barr, they will need to undertake an identification check. This is done to meet our obligation under Anti Money Laundering Regulations (AML) and is a legal requirement. We use a specialist third party service to verify your identity. The cost of these checks is £60 inc. VAT per purchase, which is paid in advance, when an offer is agreed and prior to a sales memorandum being issued. This charge is non-refundable under any circumstances. Location Summary Dover is a major ferry port town and faces France across the Strait of Dover, the narrowest part of the English Channel. It is home of the Dover Calais ferry through the Port of Dover and is famous for both its White Cliffs and Dover Castle that historically functioned as protection against invaders. Dover’s main commuting roads are the A2 and A20, connecting the town with Canterbury and London. The high speed rail service runs from Dover Priory to London St Pancras International station.
Measurements
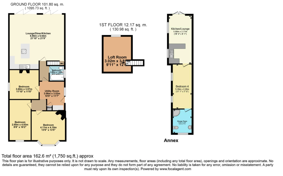
  • Ground Floor
  • Lounge/Kitchen/Diner6.65m x 6.63m
  • Bedroom3.6m x 3.56m
  • Bathroom1.85m x 1.85m
  • Utility Room3.05m x 3.53m
  • Bedroom2.64m x 4.93m
  • Bedroom4.11m x 4.1m
  • First Floor
  • Loft Room3.02m x 3.8m
  • Annex
  • Kitchen/Lounge5.87m x 2.77m
  • Bedroom5.36m x 2.26m
  • Shower Room2.84m x 2.3m