Ethelbert Road, Margate, CT9 1SB

3 bedroom for sale

£325,000

Hive
Summary

Spacious Three-Bedroom Home with Flexible Layout and Chain-Free Opportunity on Ethelbert Road!!

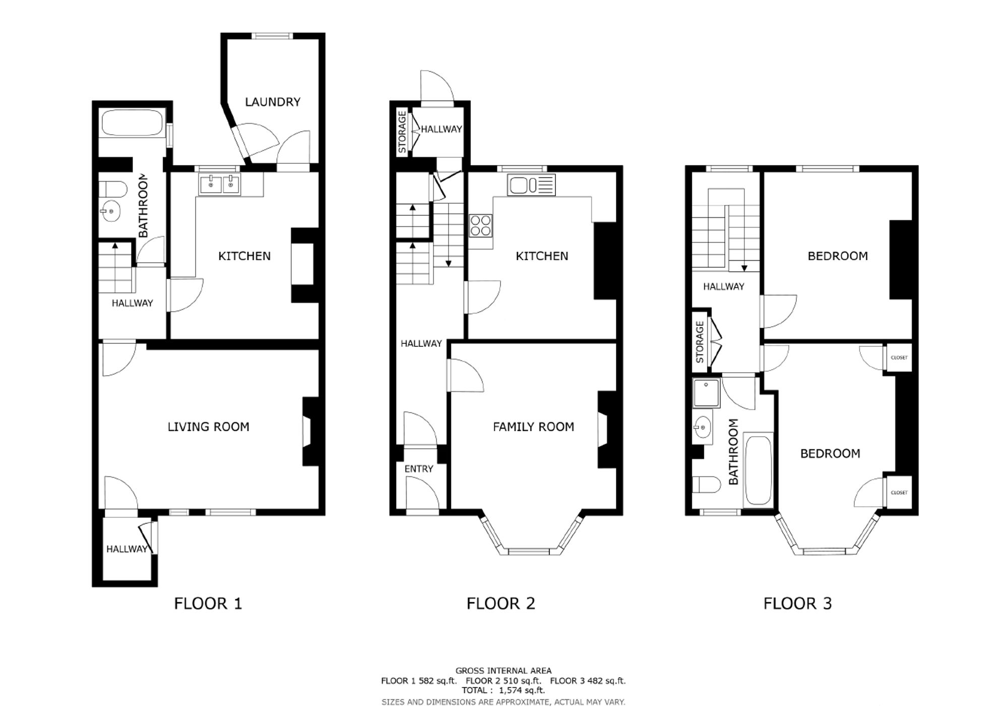
A spacious three-bedroom period home brimming with potential, split across three floors and boasting original features throughout. Upon entering, you're greeted by a cosy lounge on the right, while the heart of the home—a kitchen and dining room—sits at the rear, offering plenty of space.

Upstairs, you’ll find two generously sized bedrooms, all serviced by a family bathroom located on the half landing. The lower ground floor expands your living options with a bedroom and reception room and a convenient shower room at the rear, along with direct access to a charming garden.

Although the property requires some work to restore it to its full glory, opportunities like this are rare in Ethelbert Road. Homes here seldom come to market as one complete residence, and when they do, they present truly remarkable potential. With its original character intact and spacious layout, this home is an incredible opportunity for those looking to create something special.

Property is brick and block construction.

These property details are yet to be signed off by the vendor.

Identification checks:

Should a purchaser(s) have an offer accepted on a property marketed by Miles & Barr, they will need to undertake an identification check. This is done to meet our obligation under Anti Money Laundering Regulations (AML) and is a legal requirement. We use a specialist third party service to verify your identity. The cost of these checks is £60 inc. VAT per purchase, which is paid in advance, when an offer is agreed and prior to a sales memorandum being issued. This charge is non-refundable under any circumstances.

Location Summary:

Margate is a fantastic seaside town and contains the areas of Cliftonville, Garlinge, Palm Bay and Westbrook. The energy surrounding Margate is excellent, it holds the likes of a world class Art Gallery, the UK's original pleasure park 'Dreamland', fast Rail links into London and of course not forgetting the stunning sandy beaches and sparkling bays. You are within a 10 minute drive to the neighbouring towns which are Broadstairs, Ramsgate and Birchington. There are also good road links to London via the A299 Thanet Way and M2 Motorway.

Measurements
  • Entrance
  • Entrance Hall
  • Living Room
  • Reception/Kitchen
  • Lower Ground Foor
  • Bedroom
  • Kitchen
  • Bathroom
  • Utility Room
  • First Floor
  • Bathroom
  • Bedroom
  • Bedroom